買いたい
福岡の地域密着企業だからこそできる、
エリアに熟知した最適なご提案
アーティックス大濠 201号室
写真をクリックすると詳細をご覧いただけます。
写真をクリックすると
詳細をご覧いただけます。
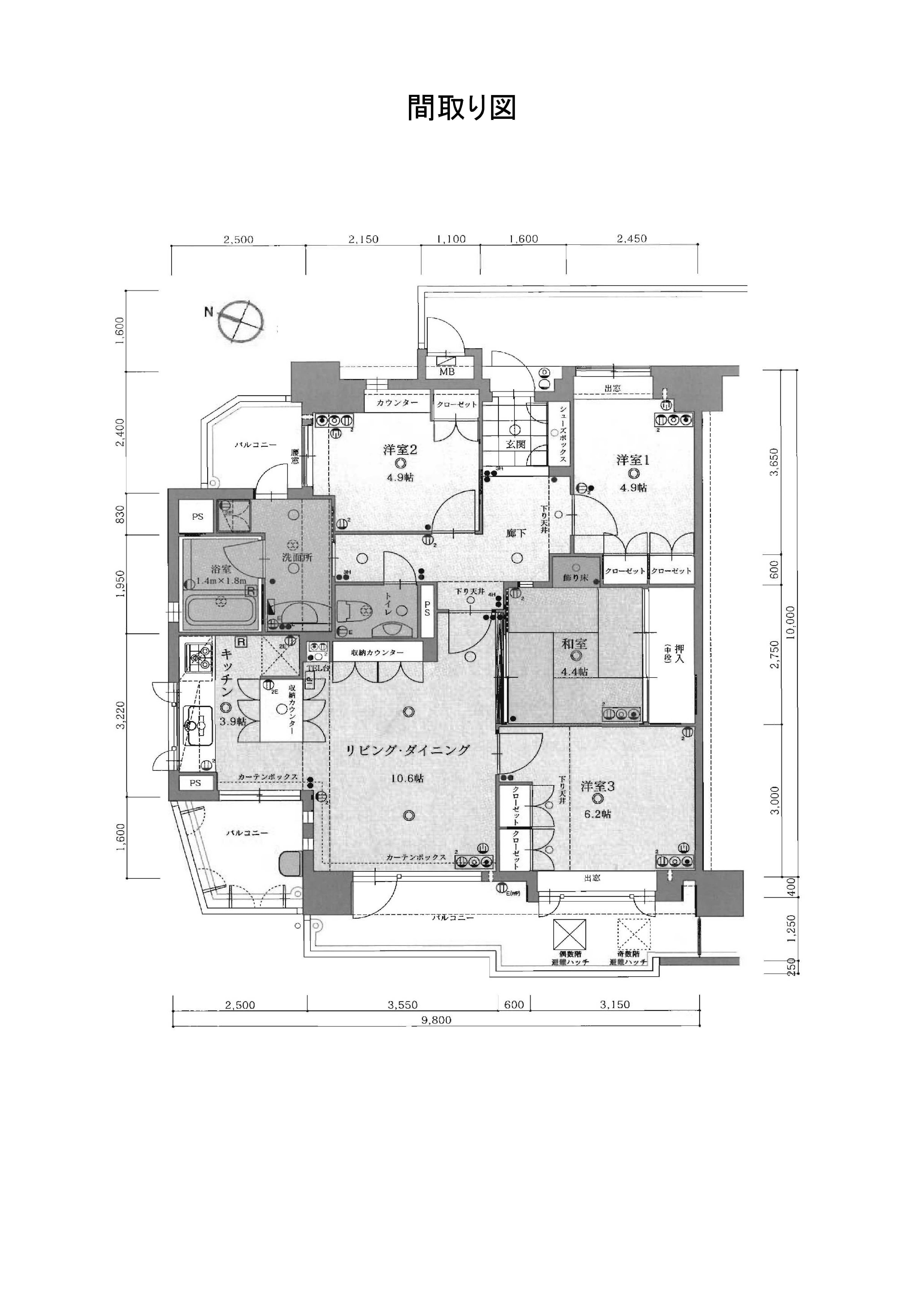
福岡市中央区鳥飼一丁目に位置する本物件は、都市の利便性と穏やかな住環境を兼ね備えた理想的なロケーション。85.80㎡の広々とした4LDK。
徒歩圏内にはスーパーや公園、教育施設が充実しており、毎日の暮らしに安心と快適を。地下鉄やバスのアクセスも良好で、通勤・通学にも便利です。
物件詳細
-
- 種目
- 中古
-
- 価格
- 6000万円(税込)
-
- 取引態様
- 専任媒介
-
- 所在地(地番)
- 福岡市中央区鳥飼一丁目二区57番地
-
- 所在地(住居表示)
- 福岡県福岡市中央区鳥飼一丁目2-19
-
- 交通・最寄り駅1
- 地下鉄七隈線 「六本松」駅 徒歩約9分
-
- 交通・最寄り駅2
- 西鉄バス 「鳥飼二丁目」停 徒歩約3分
-
- 現況
- 空
-
- 引渡
- 相談
-
- 管理費
- 6860円 / 月
-
- 修繕積立金
- 20590円 / 月
建物情報
-
- 建築年月
- 2004年2月
-
- 構造
- RC
-
- 棟総戸数
- 36戸
-
- 地上階層
- 8階
-
- 所在階
- 2階
-
- 専有面積
- 85.8㎡
-
- 計測方式
- 壁芯
-
- 間取り
- 4LDK
-
- 間取り内訳
- LD10.6帖 キッチン3.9帖 洋室6.2帖 洋室4.9帖×2部屋 和室4.4帖
-
- バルコニー面積
- 20.6㎡
-
- バルコニー方角
- 南西面
-
- 駐車場の有無
- あり
-
- 駐車場料金
- 11000円/月
-
- 駐輪場
- 100円/月
-
- バイク置き場
- ・バイク(50㏄以下)300円/月 ・バイク(51㏄以上250㏄まで)500円/月
-
- 条件
- ペット可
-
- 条件の備考
- 可(犬・猫計2匹)※大型犬は不可
-
- その他の条件
- ※駐車場9,000円~11,000円/月 ※251㏄以上のバイク駐輪は駐車場区画を契約して駐輪になります
-
- 設備
-
都市ガス
TVモニタ付インターホン
CSアンテナ
BSアンテナ
ケーブルテレビ
エレベーター
オートロック
温水洗浄便座
バルコニー付
システムキッチン
駐輪場
フローリング
独立洗面台
ウォークインクローゼット
-
- 管理形態
- 全部委託
その他・備考
-
- 小学校情報
- 南当仁小学校:徒歩約4分(約285m)
-
- 中学校情報
- 当仁中学校:徒歩約25分(約1968m)
-
- 周辺
- セブンイレブン福岡草香江2丁目店 徒歩約6分 (約400m)
マックスバリュエクスプレス今川店 徒歩約10分 (約650m)
-
- 大規模修繕履歴
- なし
お問い合わせ先
-
- 問い合わせ先名
- 売買営業課
- 住所
- 福岡市博多区住吉4丁目3-2 博多エイトビル2F
営業時間:月~金(祝日を除く)9:00~17:00
- TEL
- 092-260-8560
-
- 免許番号
- 宅地建物取引業 福岡県知事(6)13400号
- 所属団体
- 福岡県宅地建物取引業協会
- 担当者
- 川田
- 更新日
- 2026年02月13日
- 次回更新日
- 2026年02月27日
お問い合わせContact
■下記の項目を入力の上、「確認」ボタンをクリックしてください。
【必須】のついている項目は、必ず入力をお願いいたします。
※ご入力いただきました個人情報はプライバシーポリシーに従いお取り扱いいたします。
入力情報確認の前に個人情報のお取り扱いについての説明を必ずお読みください。
個人情報のお取り扱いについて
当社は、お取引に伴いお客様の個人情報をお預かりいたしております。この書面はこのたびのお取引に伴い、お預かりするお客様の個人情報の保護とお取扱につきまして、個人情報保護法の規定に従いご説明するものです。
1.個人情報に対する基本的姿勢
当社は、「個人情報保護方針」を定め、個人情報保護に関する法令と規範を尊重・遵守し、個人情報の適正な取扱いと保護に努めます。
2.当社が保有する個人情報
1)当社は、従業員、採用応募者、賃貸物件の入居希望者様・入居者様・連帯保証人様・入居者家族様・同居人様、及び損害保険契約者様・保証委託契約者様及びその申込者様、その他当社が提供するサービスの利用者及び関係者(以下、総称してお客様といいます)の個人情報を有しています。
2)お客様の個人情報のうち氏名、性別、生年月日、住所、電話番号、ファックス番号、メールアドレス(勤務先含む)、勤務先の業種、年収、入金情報、その他の情報を利用させていただきます。
3.個人情報の利用目的
1)不動産事業
[1]不動産の賃貸契約又は売買契約の相手方を探索すること及び賃貸借、仲介、管理、売買等の契約を締結し、契約に基づく役務を提供することに利用します。
[2]管理が伴う場合には、締結した管理委託契約業務履行のために利用します。
[3]解約及び解約敷金精算業務履行のために利用します。
[4]物件情報を取引の相手方探索のために利用します。
[5]物件情報をインターネット、チラシ等広告をするために利用します。
[6]物件情報を、取引の相手方探索のため指定流通機構の物件検索システム(レインズ)に登録する場合があります。なお契約後、指定流通機構(宅地建物取引業法により、国土交通大臣の指定を受けた機構)に対し、成約情報(成約情報は、成約した物件の、物件概要、契約年月日、成約価格などの情報で氏名は含みません。)を提供します。指定流通機構は、物件情報及び成約情報を指定流通機構の会員たる宅地建物取引業者や公的な団体に電子データや紙媒体で提供することなどの宅地建物取引業法に規定された指定流通機構の業務のために利用します。
[7]上記、[1]から[6]の業務に付随する、お客様にとって有用と思われる当社及び提携先のご案内や商品の発送、関連するアフターサービス、また、管理においてのメンテナンス等の業務に関するお知らせ等に利用します。
[8]宅地建物取引業法第49条に基づく帳簿及びその資料として保管します。
[9]不動産の賃貸、売買等に関する価格査定に利用します。価格査定に用いた成約情報は、宅地建物取引業法第34条の2第2項に規定する「意見の根拠」として仲介の依頼者に提供することがあります。
[10]「個人情報の第三者提供」記載の第三者に提供します。
2)損害保険代理店事業・少額短期保険代理店事業
当社は、取得した個人情報を、保険会社より保険募集業務の委託を受けて、当該業務の遂行に必要な範囲で利用いたします。
具体的な利用目的は次のとおりです。
[1]当社が取り扱う損害保険・少額短期保険、及びこれらに付帯関連するサービスの提供。
なお、当社が保険代理店業務を委託している保険会社は以下のとおりです。各保険会社における個人情報の利用目的につきましては、それぞれのウェブサイトをご覧ください。
3)家賃債務保証代理店事業
当社は、取得した個人情報を、保証会社より保証委託契約の手続き業務の委託を受けて、当該業務の遂行に必要な範囲で利用いたします。
具体的な利用目的は次のとおりです。
[1]当社が取り扱う保証委託契約、及びこれらに付帯・関連するサービスの提供。
なお、当社に対して委託を行う保証会社の利用目的につきましては、ウェブサイトをご覧下さい。
ハッピー住宅保証株式会社(https://www.happy-house.co.jp/img/contract.pdf)
4)採用応募者の個人情報
「採用募集者の個人情報の取扱について」(PDF)に同意された方のみご応募ください。
「採用応募者の個人情報の取扱について」を応募書類に添えて、ご応募ください。
4.直接書面以外の方法により取得する個人情報
求人情報サイトより提供を受ける個人情報は採用選考のために利用します。
5.個人情報を与えることの任意性
所定の個人情報をご提供いただけない場合は、不動産の賃貸契約や損害保険の契約等が出来ない場合がございます。
6.個人情報の第三者提供
取得した個人情報の取扱いにあたり、その同意頂いた利用目的の範囲内で使用します。「あらかじめご承諾を頂いた場合」、「業務を委託する場合」及び「法的な要請等の正当な理由のある場合」以外は、個人情報を第三者へ提供することはございません。
なお、お客様からの申出がありましたら、提供は停止いたします。但し、提供停止の結果、契約の履行、情報・サービスの提供に支障が生じることがありますのでご了承ください。
提供を予定する第三者又は場合の例示
1)法令に基づく場合。
2)人の生命、身体又は財産の保護のために必要である場合であって、本人の同意を得ることが困難であるとき。
3)公衆衛生の向上又は児童の健全な育成の推進のために特に必要がある場合であって、公衆衛生の向上又は児童の健全な育成のために特に必要があるとき。
4)国の機関若しくは地方公共団体又はその委託を受けた者が法令の定める事務を遂行することに対して協力する必要がある場合であって本人の同意を得ることにより当該事務の遂行に支障を及ぼすおそれがあるとき。
5)お客様から委託を受けた事項についての契約の相手方となる者、その見込者。
6)家賃回収業務に関する金融機関関係。
7)対象不動産について管理の必要がある場合における管理業者。
8)入居希望者様の信用照会のための信用情報機関(必要な場合)
9)入居者様が賃料を滞納した場合の滞納取立者。
10)他の不動産業者
11)インターネット広告、その他広告の掲載事業者及び団体。
12)指定流通機構(専属専任媒介契約、専任媒介契約が提携された場合には、宅地建物取引業法に基づき、指定流通業者への登録及び成約情報の通知が宅地建物取引業者に義務付けられます。)
13)登記に関する司法書士、土地家屋調査士。
14)当社が代理店契約している損害保険会社。
15)お客様にとって有用と思われる当社提携先。
16)利用目的の達成に必要となるその他第三者。
17)町内会。
18)当社のグループ会社。
7.損害保険代理店事業・少額短期保険代理店事業におけるセンシティブ情報のお取扱い
当社は、保険業法施行規則第234条第1項第17号に定める保健医療等に関する情報(以下、「センシティブ情報」といいます。)については、次に揚げる場合を除くほか、取得、利用又は第三者提供を行いません。
1)法令に基づく場合。
2)人の生命、身体又は財産の保護のために必要がある場合。
3)公衆衛生の向上又は児童の健全な育成の推進のために特に必要がある場合。
4)国の機関若しくは地方公共団体又はその委託を受けた者が法令の定める事務を遂行することに対して協力する必要がある場合。
5)保険料収納事務等の遂行上必要な範囲において、政治・宗教等の団体若しくは労働組合への所属若しくは加盟に関する従業員等のセンシティブ情報を取得、利用又は第三者提供する場合。
6)相続手続きを伴う保険金支払事務等の遂行に必要な限りにおいて、センシティブ情報を取得、利用又は第三者に提供する場合。
7)保険業の適切な業務運営を確保する必要性から、本人の同意に基づき業務遂行上必要な範囲でセンシティブ情報を取得、利用又は第三者提供する場合。
8)センシティブ情報に該当する生体認証情報を本人の同意に基づき、本人確認に用いる場合。
8.個人情報処理の外部委託
お客様の個人情報について、利用目的を達成するために必要な範囲内で個人データを外部に委託する場合があります。その場合には、個人情報の保護に十分な措置を講じているものを選定し、委託先に対して必要な契約を締結し、かつ適切な監督を行い、個人情報の保護の水準を担保いたしております。
9.個人情報の保護対策
1)当社の従業員に対して個人情報保護のための教育を定期的に行い、お客様の個人情報を厳重に管理いたします。
2)当社のデータベース等に対する必要な安全管理措置を実施いたします。
10.個人情報の共同利用
下記グループ会社との間で、不動産管理関係の申し込みにより取得したお客様の個人データを共同利用いたします。
共同して利用する個人データの項目 お客様の氏名・住所・電話番号
共同して利用する者の範囲 上村建設株式会社
共同利用の目的 お客様の不動産管理のため
個人データの管理について責任を有する者 ハッピーハウス株式会社、ハッピー住宅保証株式会社、ハッピーリースサービス株式会社
電話:092-483-0360
11.個人情報の開示・訂正・利用停止
お客様の個人情報について、その内容の開示・訂正・利用の停止等のご請求、その他個人情報に関するご質問、ご意見等のお申し出については、以下のお問合せ窓口にご連絡ください。
受付時間は9:00~12:00、13:00~17:00
(土日祝祭日及び夏季年末年始を除く)
(1) お問合せ窓口
〒812−0018 福岡市博多区住吉4丁目3-2
ハッピーハウス株式会社 個人情報お問合せ窓口 総務課
TEL:092-483-0360/FAX:092-260-8327
(2) 個人情報の開示請求等の方法
お客様の個人情報について、開示・訂正・利用停止等を希望される場合は、当社の定める様式の請求書(PDF;ダウンロード用)に必要事項を記入いただいた上で、本人確認に必要な資料とともに、上記お問合せ窓口までご郵送下さい。
情報の漏洩防止、正確性の確保の観点から、必要な調査を行い、当該請求がご本人よりなされたものであると確認できた場合に限り、ご請求内容に応じた合理的な期間内に必要な措置をとります。
なお、手数料として1件につき金1,100円(税込)をご負担いただきますのでご了承下さい。
(定額小為替を指定書式に同封いただきますようお願いいたします。)
保有個人情報請求書(PDF)
12.認定個人情報保護団体に関するお問い合わせ先
一般財団法人日本情報経済社会推進協会
個人情報保護苦情相談室
〒106-0032 東京都港区六本木一丁目9番9号六本木ファーストビル内
電話番号:03-5860-7565
安全管理措置
(基本方針の策定)
・個人データの適正な取扱いの確保のため、「関係法令・ガイドライン等の遵守」、「質問及び苦情処理の窓口」等についての基本方針を策定
(個人データの取扱いに係る規律の整備)
・取得、利用、保存、提供、削除・廃棄等の段階ごとに、取扱方法、責任者・担当者及びその任務等について個人データの取扱規程を策定
(組織的安全管理措置)
・個人データの取扱状況について、定期的に自己点検を実施するとともに、他部署による内部監査を年2回実施
(人的安全管理措置)
・個人データの取扱いに関する留意事項について、従業者に定期的な研修を実施
・個人データについての秘密保持に関する事項を就業規則に記載
・入社時、秘密保持誓約書の取得
(物理的安全管理措置)
・個人データを取り扱う区域において、従業者の入退室管理及び持ち込む機器等の制限を行い、権限を有しない者による個人データの閲覧を防止する措置を実施
・個人データを取り扱う機器、電子媒体及び書類等の盗難又は紛失等を防止するための措置を講じるとともに、事業所内の移動を含め、当該機器、電子媒体等を持ち運ぶ場合、容易に個人データが判明しないよう措置を実施
(技術的安全管理措置)
・アクセス制御を実施して、担当者及び取り扱う個人情報データベース等の範囲を限定
・個人データを取り扱う情報システムを外部からの不正アクセス又は不正ソフトウェアから保護する仕組みを導入
